立即预约 立即预约
免费定制整装家居

免费定制整装家居

一站置家 全程无忧 一省到底
hide.png

当前位置: 首页 > 装修案例效果图 > 鑫丰熙区府|现代风格

鑫丰熙区府|现代风格 90平 现代简约风格效果图

收藏
案例风格 现代简约 案例户型 二居 案例面积 90平米
楼盘名称 鑫丰熙区府 设计师 王杰 案例类型 改善性住宅

设计理念:本案是现代简约风格,整体设计主要颜色为白灰色系,简约而不简单,采用简洁的方式来实现装修的美感,照映着我们平淡简单的美好生活。

客厅
第1张
第2张
第3张
餐厅
第1张
卧室
第1张
卫生间
第1张
第2张
厨房
第1张
书房
第1张
第2张
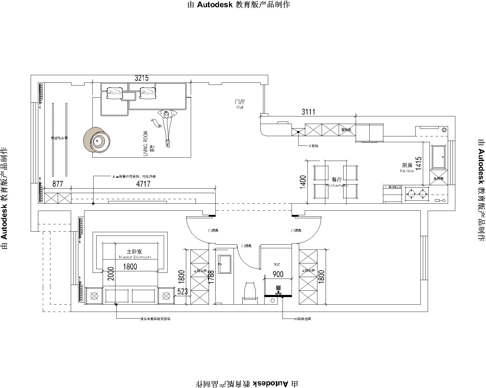
户型图
第1张
S8-鑫丰熙区府-90平-现代风格-平面图 (2).jpg S8-鑫丰熙区府-90平-现代风格-平面图 (1).jpg S8-鑫丰熙区府-90平-现代风格-平面图 (4).jpg

客厅棚顶做的吊棚造型,采用无主光源无主灯设计,通过筒灯氛围灯以及磁吸灯来照明,简约大气的视觉观感给予家中满满的时尚风格。

S8-鑫丰熙区府-90平-现代风格-平面图 (3).jpg

餐厅也是贯彻了实用简洁为主的理念,是一个4人位的餐桌,旁边链接着厨房的中岛台,用餐时会有更大的空间,而餐桌台面颜色也是中岛台面设计颜色进行了呼应。

S8-鑫丰熙区府-90平-现代风格-次卧).jpg

卧室是家中最温馨浪漫的地方,一款时尚简约的卧室背景墙更是卧室设计中的重头戏。设计上多运用点、线、面等要素形式美的基本原则,使造型和谐统一而富于变化,使卧室背景墙层次丰富、错落有致。

S8-鑫丰熙区府-90平-现代风格-卫生间 (2).jpg S8-鑫丰熙区府-90平-现代风格-卫生间 (1).jpg

卫生间的墙壁地面使用的都是灰色性瓷砖,看起来融为一体,并且洗手台的柜体颜色也是深灰色,使卫生间看起来更加的干净整洁。

S8-鑫丰熙区府-90平-现代风格-厨房.jpg

结构上采用开放式,餐厅和厨房设计在一起,这样看起来空间会宽敞很多。其厨房地面材料全部采用和客厅同样的瓷砖铺设而成,灶台台面全部采用的是白色,上橱柜用的是全屋的主色系,和鞋柜餐边柜以及电视柜一样的颜色,看起来更整体干净、利索、整洁。

S8-鑫丰熙区府-90平-现代风格-次卧).jpg 王杰设计丨鑫丰熙区府-改2-次卧 2-20250415-114911.jpg 鑫丰熙区府90平现代平面图.jpg

案例设计师

王杰

设计师:王杰

从业时间:7年

设计理念:因生活而设计,因设计而完美。

预约设计师

算算你家装修多少钱

报名即享丰厚赠品,享半价装修

免费报价
咨询热线:400-656-9909
20190221103704574636.jpg

精品设计案例

20180612134930523248.jpg 服务号二维码.jpg