立即预约 立即预约
免费定制整装家居

免费定制整装家居

一站置家 全程无忧 一省到底
hide.png

当前位置: 首页 > 装修案例效果图 > 龙湖|现代简约风格

龙湖|现代简约风格 138平 现代简约风格效果图

收藏
案例风格 现代简约 案例户型 三居 案例面积 138平米
楼盘名称 龙湖 设计师 高阳 案例类型 改善性住宅

设计理念:本次家装设计遵循现代简约与功能性相融合的理念,强调以简洁的设计手法打造高品质的生活空间。

高阳-龙湖-138平-电视背景墙.jpg 高阳-龙湖-138平-客厅1.jpg 高阳-龙湖-138平-客厅.jpg 高阳-龙湖-138平-客厅2.jpg

客厅以开放式格局呈现,大面积落地窗引入充足自然光线,窗外景色成为天然装饰。

高阳-龙湖-138平-餐厅1.jpg 高阳-龙湖-138平-餐厅.jpg 高阳-龙湖-138平-客卧.jpg 高阳-龙湖-138平-主卧.jpg

卧室追求宁静舒适的休憩氛围,以浅米色、米白色墙面搭配深色木地板,温馨自然。

高阳-龙湖-138平-客卫.jpg 高阳-龙湖-138平-客卫1.jpg 高阳-龙湖-138平-主卫.jpg 高阳-龙湖-138平-主卫1.jpg 高阳-龙湖-138平-主卫2.jpg

卫生间采用干湿分离设计,提升使用效率和安全性。以米色、白色大理石为主材,搭配黑色五金件,简约又高级。

高阳-龙湖-138平-厨房.jpg

厨房设计兼顾美观与实用。L型或岛台与餐桌结合的布局,操作流程顺畅,方便日常烹饪与家人互动。深木色的整体橱柜搭配黑色大理石台面,质感十足。

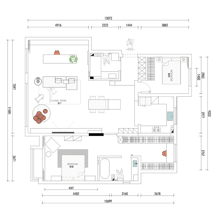
户型图龙湖.jpg

案例设计师

高阳

设计师:高阳

从业时间:11年

设计理念:有限空间、无限设计。

预约设计师

算算你家装修多少钱

报名即享丰厚赠品,享半价装修

免费报价
咨询热线:400-656-9909
20190221103704574636.jpg

精品设计案例

20180612134930523248.jpg 服务号二维码.jpg