立即预约 立即预约
免费定制整装家居

免费定制整装家居

一站置家 全程无忧 一省到底
hide.png

当前位置: 首页 > 装修案例效果图 > 中航城•两河流域

中航城•两河流域 87平 现代简约风格效果图

收藏
案例风格 现代简约 案例户型 二居 案例面积 87平米
楼盘名称 中航城•两河流域 设计师 林凤设计师 案例类型 改善性住宅

设计理念:现代风格简洁、实用,功能性强,可以让人们从忙碌的工作中,体验到一番自由放松的心情。

客厅
第1张
第2张
第3张
餐厅
第1张
卧室
第1张
第2张
卫生间
第1张
厨房
第1张
门厅
第1张
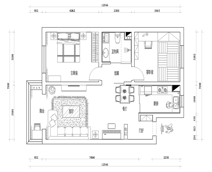
户型图
第1张
  • 案例详情

中航城两河流域-87平-现代 客厅01.jpg 中航城两河流域-87平-现代 客厅02.jpg 中航城两河流域-87平-现代 客厅03.jpg

中航城•两河流域87平2居室现代风格林凤装饰的客厅电视背景墙以简单的石膏板做造型,三个半圆形做线条的勾勒,中心部分是硅藻泥砖做衬托,两侧设计了壁灯,简单、干净、又具设计感。沙发背景墙设计了浅咖色,与电视背景墙的白色形成鲜明对比,几抹跳跃的黄色,活跃了空间的色调。鹿头造型饰品,寓意招财有路。

中航城两河流域-87平-现代 餐厅.jpg

中航城•两河流域87平2居室现代风格林凤装饰的餐厅空间摆放餐桌,尺寸不够,设计师设计了一段造型隔断,延长了餐厅墙面的长度,电表箱配上概念性挂画,简简单单的餐厅氛围就烘托出来了。

中航城两河流域-87平-现代 卧室01.jpg 中航城两河流域-87平-现代 卧室02.jpg

中航城•两河流域87平2居室现代风格林凤装饰的卧室的设计更加注重温馨与实用功能性,靠近窗边设计了飘窗书桌与书柜,作为偶尔回家工作的空间,靠近床头的一侧,设计了敞开式的书柜,睡前与孩子做一个亲子共读,好习惯从小培养。

中航城两河流域-87平-现代 卫生间.jpg

中航城•两河流域87平2居室现代风格林凤装饰的卫生间设计了干湿分离区,浴室柜选用了实用的镜柜,白色的理石台面和浅灰色的墙砖形成对比,显得干净、简洁,实木柜门更显档次。

中航城两河流域-87平-现代 厨房.jpg

中航城•两河流域87平2居室现代风格林凤装饰的厨房空间不是很大,冰箱选用了尺寸小一些的,作为嵌入式,更加节省空间。简单的L型橱柜,柜门选用了AB版的爱家板造型柜门,简单、好打理。

中航城两河流域-87平-现代 门厅.jpg

中航城•两河流域87平2居室现代风格林凤装饰的玄关

中航城两河流域-87平-现代-平面布置图.jpg

案例设计师

林凤设计师

设计师:林凤设计师

从业时间:5年

设计理念:设计不但要有整体性,更要突出实用性和舒适度,注重人体工程学。简单、实用、美观才是王道!

预约设计师

算算你家装修多少钱

报名即享丰厚赠品,享半价装修

免费报价
咨询热线:400-656-9909
20190221103704574636.jpg

精品设计案例

20180612134930523248.jpg 服务号二维码.jpg