 
        
     立即预约
        立即预约
     
            免费定制整装家居
一站置家 全程无忧 一省到底 
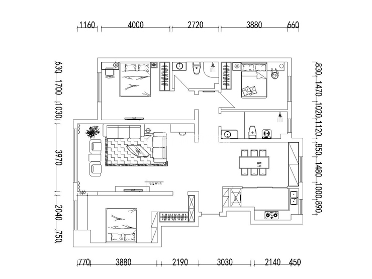
        设计理念:本案整体设计为现代轻奢风格,整体色调是灰咖色搭配金色的家具配饰,墙面采用灰色墙纸,顶棚则是双层石膏线,没有做吊棚,从而使空间更加宽敞,通长的走廊地面用了地砖边线搭配一幅装饰画提升了整体档次。
案例详情
 
                                                                            客厅的面积比较大,由于卧室门在电视背景墙一侧,所以在背景墙上做了造型巧妙的将卧室门结合到了背景墙中。沙发电视柜等配饰都以浅色为主。
 
                                                                            餐厅空间很长,于是利用空间在窗下放置了一个餐边柜,亦或是储物柜,厨房采用拉门,厨房餐厅整体更宽敞。
 
                                                                             
                                                                            相对于客厅餐厅的轻奢大气,卧室更加温馨,在整体色调的基础上依靠软装的点缀,使得卧室更加丰富,且杂而不乱。
 
                                                                            卫生间采取干湿分离,干区通铺客厅地砖,墙面则是装饰性的图案壁纸,不仅不与整体相勃还是一个小亮点柜体版型与客厅呼应。
 
                                                                            厨房设计成了半开敞式厨房,既节省空间又增加了采光,整体视觉感更强。活动区域更开阔,使用方便。
 
                                                                             
                                                                             
                                                                精品设计案例
 
            设计说明:
                        
 三室两厅一厨两卫,高层整体采用美式风格,色调以深色为主,体现美式的居家感和温馨感。                    
 
             
            设计说明:
                        
 本案业主为年轻时尚小两口,所以我们考虑到未来想要给未来宝宝一个温馨舒适的一个房间,所以本案整体采用现代风格的手法,运用颜色,来打造整体空间的设计感及时尚感                    
 
             
            设计说明:
                        
 本案以北欧风格为主题的设计,北欧风格能以现代、简洁、自然的特点俘获人心,所营造出来的生活氛围会让人倍感舒适与自在。                    
 
             
            设计说明:
                        
 客户是一名成功人士,对于家的执念就是简单干净,客户衣服比较多,所以把每个空间都做了大衣柜,并且融入到设计里                    
