立即预约 立即预约
免费定制整装家居

免费定制整装家居

一站置家 全程无忧 一省到底
hide.png

当前位置: 首页 > 装修案例效果图 > 美的城

美的城 93平 现代简约风格效果图

收藏
案例风格 现代简约 案例户型 二居 案例面积 93平米
楼盘名称 美的城 设计师 林凤装饰设计师 案例类型 婚房

设计理念:业主是一位三十而立的男士,此房屋为改善性住房,目前暂时一口人住,想要一种回家舒心、干净、明亮的现代风格设计。本案为现代设计风格,干净,立体、整洁具有品味性。让家中呈现一种舒适、时尚之美。标准户型的卫生间改造呈现的功能区分。局部深色的色调家具搭配。让整个空间更加立体,让家居生活更舒适。

客厅
第1张
餐厅
第1张
第2张
卧室
第1张
卫生间
第1张
厨房
第1张
阳台
第1张
门厅
第1张
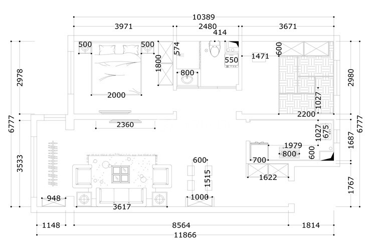
户型图
第1张
  • 案例详情

美的城-93平-现代风格-客厅2.jpg

客厅的装修风格,客厅作为待客区域,一般要求明亮的色调。此客厅的背景墙设计为硅藻泥文化砖,带有时尚气息、而且硅藻泥对吸附甲醛有更好的功效。使用浅米色布艺的沙发结合灰色系地砖, 结合硅藻泥文化砖的电视背景墙更显得有立体感、空间感。更能体现现代风格的特点。

美的城-93平-现代风格-餐厅.jpg 美的城-93平-现代风格-餐厅2.jpg

业主非常喜欢此设计风格,具有年轻人得时尚品味,吧台式餐厅,闲暇时间可以跟朋友欢聚一堂。餐厅强调自由自在,放松共进早晚餐的空间,简洁明了时尚。无需太多装饰,简单实用。

美的城-93平-现代风格-卧室.jpg

卧室是主人休息的空间,由于业主家是现代风格偏时尚所以我么门运用了经典的灰色系,墙体整体以灰色乳胶漆,整体比较低调、时尚。

美的城-93平-现代风格-卫生间.jpg

卫生间进行了整体改造,把现在标准户型的卫生间做成了“干湿分离”,干湿分离的方式更适合年轻人的生活节奏,当家里是两个人得时候,早上可以互不干扰,节省上班时间,整体浅灰色墙砖突出效果,表现的一体化。配备白色洁具和浴室柜,显得更加明亮。

美的城-93平-现代风格-卧室.jpg

厨房在人们眼中一般是开敞的。但封闭式式厨房最为适合,烹饪时可以阻挡串烟。尤其是中国人煎、炒、烹、炸式的做饭方式和一些噪音更加适合封闭式厨房。灰黑的瓷砖和UV漆的橱柜结合,给人一种时尚主题厨房的感觉。

美的城-93平-现代风格-阳台.jpg 美的城-93平-现代风格-玄关.jpg 美的城-93平-现代风格-平面图.jpg

案例设计师

林凤装饰设计师

设计师:林凤装饰设计师

从业时间:10年

设计理念:设计是具有灵魂的。从生活出发,在生活中思考,让生活升华。实用与形式美感相互融合,满足功能需求及精神需求,使“家”这个私属空间更方便、更舒适、更个性、更能表达主人生活的态度。

预约设计师

算算你家装修多少钱

报名即享丰厚赠品,享半价装修

免费报价
咨询热线:400-656-9909
20190221103704574636.jpg

精品设计案例

20180612134930523248.jpg 服务号二维码.jpg